Halfopen nieuwbouwwoning in Oostakker!

Verkocht Gent Groenstraat 339 A
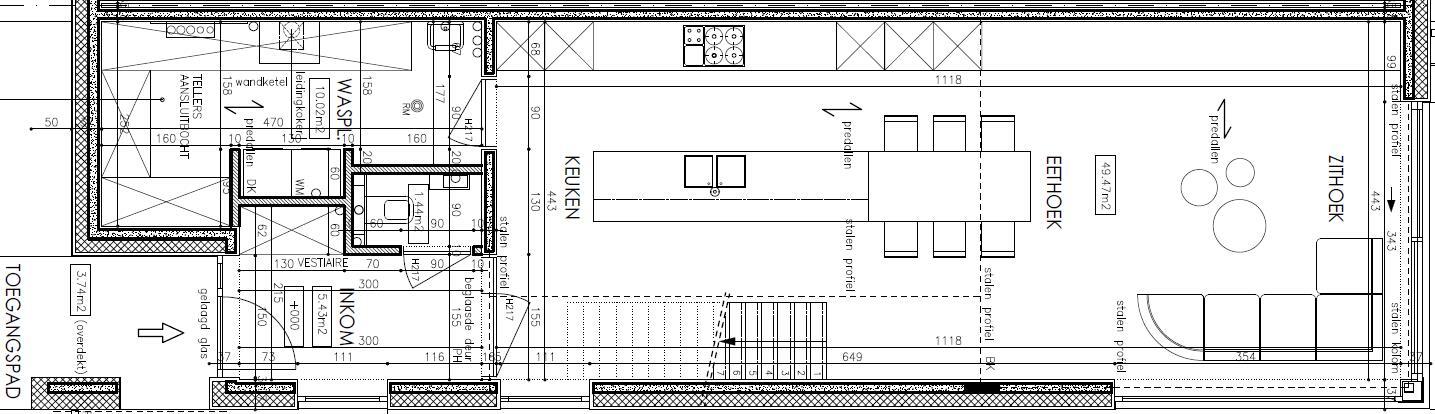
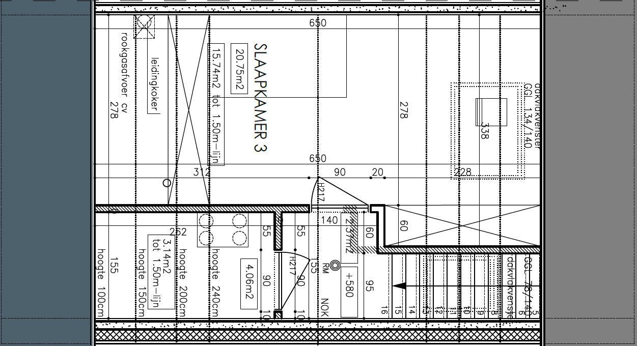
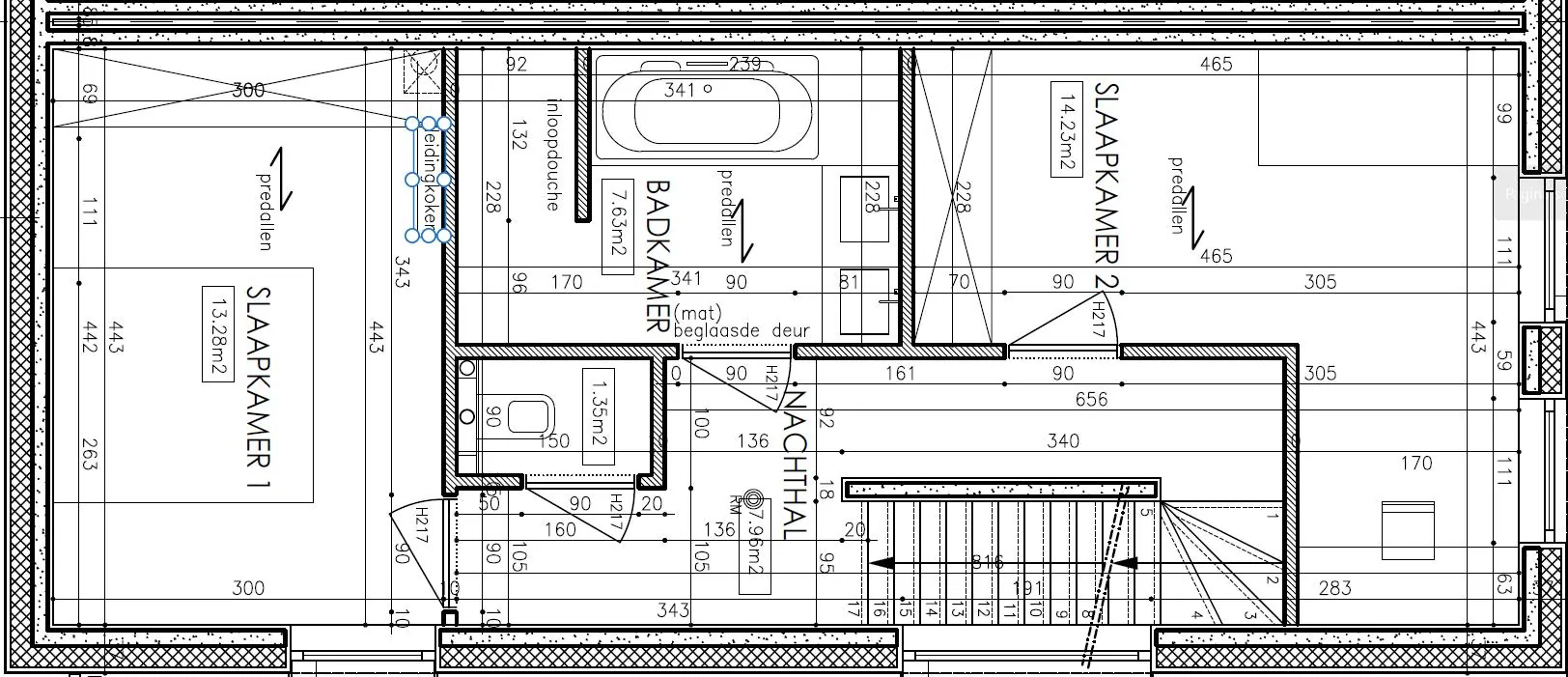
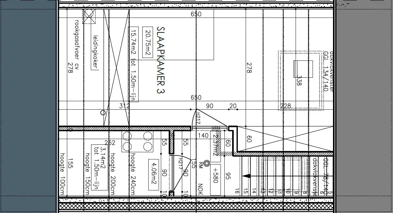
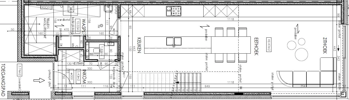
Deze halfopen nieuwbouwwoning heeft een zeer functionele indeling en is gelegen op een rustige locatie te Oostakker. Op de gelijkvloers verdieping is de indeling als volgt; inkom met apart gastentoilet, leefruimte met open keuken van 48m² die uitzicht geeft op de tuin en een wasplaats. Op de eerste verdieping bevinden zich 2 volwaardige slaapkamers van 11m² en 14m², badkamer (ligbad en inloopdouche) en apart toilet. Verder is er op zolder nog een 3de slaapkamer aanwezig van 21m². De woning wordt verwarmd met vloerverwarming op aardgas en voorzien van 12 zonnepanelen. Afwerking van vloer, badkamer, keuken is nog volledig naar eigen keuze. De plannen en materiaalbeschrijvingen zijn beschikbaar op onze website (www.solvas.be). Voor verdere info of een afspraak kunt u ons bereiken op het nummer 0477/06.89.88. | excl. registratie en btw |